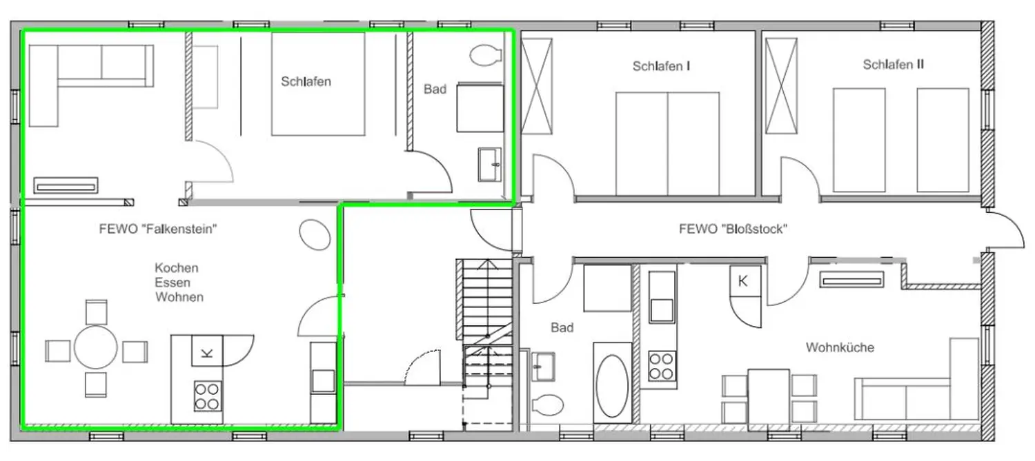
In der Ferienwohnung Falkenstein, im ersten Obergeschoß, spüren sie den Charme des alten Bauernhauses. Mit einer Größe von 54 m² bietet sie Platz für 3 Gäste.
Die Küche mit ihrem großzügigen Essbereich eignet sich auch für Familienfeiern, wenn auch die auf der gleichen Ebene liegende Ferienwohnung Bloßstock gebucht wird. Sie ist mit allem ausgestattet, was Sie zur Selbstversorgung brauchen. Sollten Sie etwas vermissen, helfen wir Ihnen nach Möglichkeit gerne aus. Der erweiterbare Esstisch wird dann zur Tafel. Ein Kaminofen sorgt an kalten Tagen für Gemütlichkeit.
Der Wohnbereich wird durch einen halbhohen Raumteiler vom Essbereich getrennt und bietet dadurch eine angenehme Rückzugsmöglichkeit. Die ausziehbare Couch bietet einen weiteren Schlafplatz.
Hinter dem anschließenden Schlafzimmer befindet sich das Bad mit Dusche.
Die Ferienwohnung verfügt zudem über eine angenehme Fußbodenheizung für extra Komfort.
Für diesen Kalender nutzen wir Cookies und vergleichbare Funktionen zur Verarbeitung von Endgeräteinformationen und personenbezogenen Daten. Dies dient der Einbindung von Inhalten, externen Diensten und Elementen Dritter. Mit der Auswahl des Kalenders erklären Sie sich damit einverstanden, dass Ihre Daten zur Bearbeitung Ihres Anliegens verwendet werden. Weitere Informationen finden Sie in der Datenschutzerklärung.
Jede Wohnung verfügt über


Wasserkocher

Kaffeefiltermaschine mit Mahlwerk (eigene Bohnen können gemahlen werden)

Toaster

Backofen

Spülmaschine

Vollständige Kochutensilien

Salz- und Pfeffermühle mit Mahlwerk

Geschirrhandtücher

Lappen

Spülmittel

Spülmaschinentabs

Fön
Bettwäsche, Handtücher, Geschirrhandtücher, Lappen, Spülmittel, Spülmaschinentabs werden gestellt.

Bettwäsche

Handtücher